.png)
Create Your First Project
Start adding your projects to your portfolio. Click on "Manage Projects" to get started
Residência Contemporânea com Subsolo, Fachada Impactante e Área de Lazer Integrada
Tipo de projeto
Residência Unifamiliar
Data
Março 2018
Sobre o Projeto
Descrição Geral
Esta residência de alto padrão apresenta uma arquitetura contemporânea sofisticada, com volumetria marcada por linhas retas, paleta neutra e elementos em madeira ripada que aquecem a composição. Com dois pavimentos — subsolo e térreo —, o projeto valoriza a integração entre os espaços internos e externos, oferecendo conforto, funcionalidade e uma experiência completa de moradia. Ideal para terrenos em declive, o layout aproveita inteligentemente o desnível para implantar a área de lazer no subsolo, com total conexão com o quintal e a piscina.
Fachada Contemporânea
A fachada transmite imponência e elegância com seus volumes retangulares sobrepostos, marcos em pintura branca e textura cinza contrastando com os painéis verticais ripados em madeira ecológica. Um grande pano de vidro no pavimento superior proporciona leveza e amplitude visual, ao mesmo tempo em que favorece a iluminação natural.
O acesso principal é marcado por um conjunto paisagístico com piso em pedra portuguesa, que conduz ao hall interno. A garagem coberta para dois veículos está integrada ao volume principal, com iluminação pontual embutida no forro e acabamento em concreto aparente, garantindo unidade visual.
Planta Térrea
A planta do pavimento térreo concentra a área íntima da residência, com:
Garagem para 2 veículos, com paisagismo frontal em piso drenante e pedra portuguesa.
Hall de entrada com acesso à sala de TV/Estar, marcada por integração visual com o pavimento inferior.
Sala de TV/Estar confortável, voltada para a iluminação natural frontal e em comunicação com a circulação dos quartos.
Suíte 1 localizada na ala frontal da casa.
Quarto funcional que pode ser utilizado como home office, dormitório de hóspedes ou sala íntima.
Suíte Master nos fundos, com amplo closet e vista para a área verde do quintal.
Banheiro social completo, acessível para visitas e dormitórios.
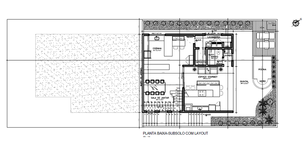
Subsolo com Área Social e Lazer
No subsolo, o projeto explora todo o potencial do terreno em declive, abrigando os espaços sociais e de serviço:
Sala de jantar ampla, com conexão visual para a escada e área externa.
Cozinha funcional com ilha central, ideal para o uso diário e apoio a eventos.
Espaço Gourmet completo, com:
Churrasqueira embutida
Bancada de apoio com cooktop
Pia dupla
Espaço de estar e TV integrados
Lavabo exclusivo para a área gourmet.
Banheiro de apoio, além de depósito e lavanderia com bom dimensionamento.
Área de Lazer com Piscina e Deck
A área externa dos fundos é o destaque do projeto:
Piscina com hidro, revestida com pedra São Tomé e área para mergulho e relaxamento.
Deck elevado em madeira, ideal para espreguiçadeiras, leitura e descanso ao sol.
Quintal ajardinado com piso antiderrapante e paisagismo lateral, que promove privacidade e conexão com a natureza.
Diferenciais Arquitetônicos
Estilo contemporâneo com volumetria elegante e proporções equilibradas.
Materiais nobres e duráveis, como pedra natural, madeira ecológica e vidro temperado.
Integração funcional entre os pavimentos por meio da escada central.
Excelente aproveitamento do terreno com declive, possibilitando uma área social voltada para o lazer nos fundos.
Iluminação e ventilação natural otimizadas em todos os ambientes.
Projeto ideal para famílias modernas que valorizam estética, funcionalidade e bem-estar.











